Bếp ăn là không gian lưu giữ năng lượng, may mắn, tài lộc và là nơi gắn kết các thành viên trong gia đình thông qua những bữa ăn ấm cúng hằng ngày. Việc lựa chọn hướng, vị trí, kích thước tủ bếp, bàn bếp theo phong thủy và phù hợp với tiêu chuẩn của người dùng không những giúp cho căn nhà luôn vượng khí, nhiều tài lộc mà còn giúp cho việc bếp núc của gia chủ trở nên thuận tiện và dễ dàng hơn.

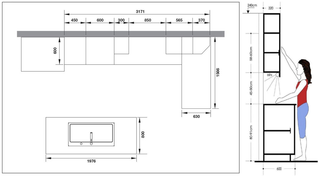
Theo các nghiên cứu của chuyên gia, độ dài cánh tay người phụ nữ Việt Nam không quá 60cm nên khi thiết kế kích thước bàn bếp hợp lý nhất là 60cm.
Khung kích thước này không xê dịch nhiều sẽ ảnh hưởng đến sinh hoạt của các chị, em nội trợ trong việc thường xuyên với tay lấy đồ, dẫn đến các vấn đề về cột sống cũng như sức khỏe.
Tuy nhiên, việc thiết kế bàn bếp còn phụ thuộc vào diện tích phòng bếp và cần cân đối kích thước cho phù hợp. Ngoài ra, mỗi loại tủ bếp hoặc bàn đảo bếp có kích thước khác nhau đều sẽ có kích thước bàn bếp phù hợp nhất.
– Chiều cao bàn bếp (tính từ mặt sàn bếp đến bàn bếp): thường dao động trong khoảng 82cm – 85cm.
– Chiều sâu bàn bếp: thường dao động khoảng 40cm – 85cm, bếp dành cho đàn ông không quá 62cm.
– Chiều dài bàn bếp: tùy thuộc vào không gian phòng bếp và mục đích sử dụng mà thiết kế cho phù hợp.

Kích thước bàn bếp theo phong thủy
– Chiều cao bàn bếp: thường dao động trong khoảng 81cm (cung Vượng Tài,Tài Khí) – 86cm (cung Tài Đức, Thiên Đức).
– Chiều sâu bàn bếp: 60cm (tính cả mặt bàn bếp)
– Chiều dài bàn bếp: để đảm bảo sự thuận tiện và hợp phong thủy, chiều dài không nên dưới 300cm
Kích thước bàn đảo bếp
– Chiều cao bàn đảo bếp: thông thường chiều cao bàn đảo bếp được thiết kế bằng chiều cao bàn bếp, dao động trong khoảng 82cm – 85cm.
– Chiều sâu bàn đảo bếp: thông thường là 50cm, chiều sâu 60cm nếu có mắt đá.
– Chiều dài bàn đảo bếp: phụ thuộc vào không gian phòng bếp và cân đối với kích thước bàn bếp chính để thuận tiện trong quá trình nấu nướng.

– Chiều cao tủ bếp: 81cm – 86cm đối với tủ dưới, 80cm đối với tủ trên, 225cm đối với tủ bếp lớn.
– Kích thước mặt bàn bếp thuộc tủ bếp dưới cách sàn bếp khoảng 81cm – 86cm. Đây cũng là kích thước bàn bếp đẹp nhất thuộc hai cung tốt theo phong thủy.
Cuối cùng, thiết kế bàn bếp cũng cần lưu ý đến khoảng cách giữu chậu rửa bát và bếp nấu. Đặt chậu rửa bát cách bếp nấu ít nhất 60cm là hợp lý nhất.
Theo: cafeland.vn